Zur Navigation wechseln Zum Inhalt wechseln Zum Footer wechseln
Wohnhaus
Neu

Attraktives Dreifamilienhaus in Kassel-Harleshausen – Ihre solide Kapitalanlage

ImmoNr
Herkulesblick.111
Objektart
Haus
Objekttyp
Dreifamilienhaus (3-FH)
Vermarktungsart
Kauf
Ort
Kassel / Harleshausen
Land
Deutschland
Wohnfläche
ca. 324 m²
Grundstücksgröße
ca. 1.468 m²
Anzahl Zimmer
9
Anzahl Badezimmer
3
Anzahl Wohneinheiten
3
Anzahl Balkone
1
Anzahl Terrassen
1
Balkon
Ja
Befeuerung
Öl
Stellplätze
3 Garagen
Terrasse
Ja
Kaufpreis
770.000,00 €
Mehr anzeigen zum Thema Beschreibung

Beschreibung

Zum Verkauf steht ein charmantes Dreifamilienhaus in begehrter Lage von Kassel-Harleshausen.

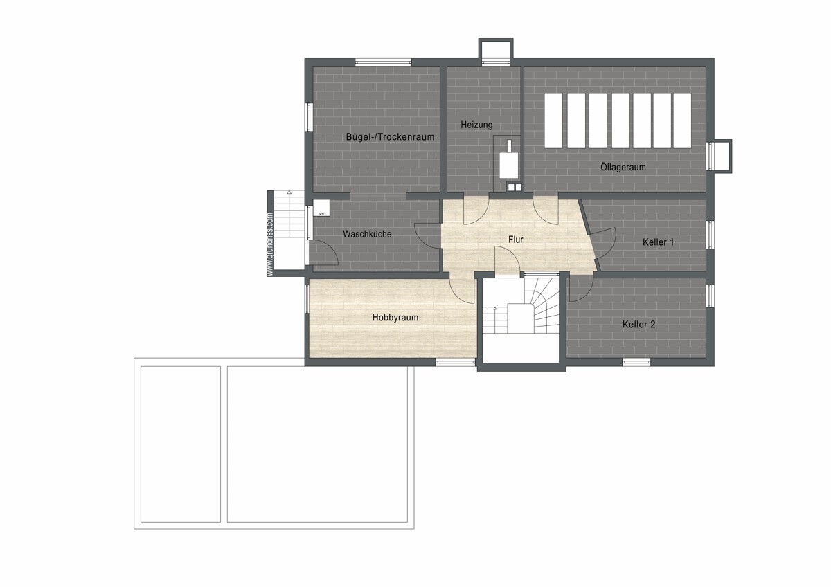
Auf drei Ebenen – Erdgeschoss, Obergeschoss und Dachgeschoss – verteilen sich jeweils eigenständige Wohneinheiten. Im Untergeschoss ergänzen praktische Nutz- und Kellerräume das Raumangebot. Das großzügige, grüne Gartengrundstück sowie drei Garagen unterstreichen den attraktiven Gesamtcharakter dieser Immobilie.

Die Wohnungen im Erd- und Obergeschoss überzeugen mit einer nahezu identischen, gut durchdachten 3,5-Zimmer-Aufteilung, jeweils mit Tageslichtbad sowie überdachter Terrasse im Erdgeschoss bzw. Balkon im Obergeschoss. Im Dachgeschoss befindet sich eine gemütliche Zweizimmerwohnung mit Tageslichtbad und Küche. Die Grundrisse sind ausgesprochen vermietungsfreundlich und bieten Mietern ein komfortables Wohnumfeld – Herkulesblick inklusive.

Die Bäder im Erd- und Obergeschoss wurden vor rund fünf Jahren modernisiert. Insgesamt präsentiert sich das Haus in einem gepflegten Zustand. Aktuell ist die Wohnung im 1. Obergeschoss inklusive einer Garage für eine Monatsnettokaltmiete von 1.010,00 € vermietet, zwei weitere Einheiten stehen derzeit leer.

Vereinbaren Sie jetzt Ihren persönlichen Besichtigungstermin und entdecken Sie das Potenzial dieser vielseitigen Kapitalanlage.
Mehr anzeigen zum Thema Ausstattung

Ausstattung

Erwerben Sie dieses attraktive Dreifamilienhaus in Harleshausen

– Baujahr 1964
– 3 Wohneinheiten mit Tageslichtbädern & Einbauküchen
– Rollläden im EG und 1. OG
– 1 Balkon, 1 Freisitz (teilweise überdacht) – beide je mit Markise
– 1/3 WE vermietet; Monatsnettokaltmiete WE 1. OG: 1.010,00 €
– SAT-Anlage
– Unterkellert
– Großes Gartengrundstück
– 3 Garagen (davon 1 Doppelgarage)
– Ölzentralheizung, Bj. 2015
Mehr anzeigen zum Thema Lage

Lage

Die Immobilie liegt ruhig und dennoch ideal angebunden in Kassel-Harleshausen, einer der besten Wohnlagen im Westen Kassels. In der Umgebung gibt es Ein- und Mehrfamilienhäuser mit grünen Gärten. Das Stadtteilzentrum mit Cafés, Geschäften, Schulen, Kitas und Ärzten ist nur zwei Minuten Autofahrt entfernt. Naherholung bietet der Habichtswald mit Wander- und Radrouten. Der Bahnhof Harleshausen (ca. 2 km entfernt) und der Bahnhof Wilhelmshöhe (mit dem Auto ca. 9 Min. entfernt) sorgen für eine gute Anbindung.
Mehr anzeigen zum Thema Sonstige Angaben

Sonstige Angaben

Das Haus ist teilweise vermietet: Zwei Einheiten sind leerstehend, die Wohnung im 1. OG ist derzeit inkl. einer Garage zu einer Monatsnettokaltmiete von 1.010,00 € vermietet.

*** Das Angebot ist für den Käufer provisionsfrei ***
Mehr anzeigen zum Thema Sonstige Angaben

Energieausweis

A+
< 30
A
30 – 50
B
50 – 75
C
75 – 100
D
100 – 130
E
130 – 160
F
160 – 200
G
200 – 250
H
> 250
Nutzungsart
Wohnen
Baujahr lt. Energieausweis
1964
Endenergiebedarf
225,8 kWh/(m²a)
Energieausweis
Bedarfsausweis
Energieausweis gültig bis
15.06.2033
Energieeffizienzklasse
G
wesentlicher Energieträger
Öl

Ihr Ansprechpartner

Mandy Bressel

Mandy Bressel

Heindrich Immobiliengruppe

Tel.:
+49 561 70188-101
E-Mail:
mandy.bressel@heindrich.de

Goethestraße 21
34119 Kassel / West

Weitere interessante Immobilien

Leben und Wohlfühlen im Mulang – direkt am Fuße des Bergparks!

ImmoNr
VK.2026.ANTH.8
Objektart
Haus
Objekttyp
Einfamilienhaus
Vermarktungsart
Kauf
Ort
Kassel / Wilhelmshöhe
Anzahl Zimmer
9,5
Anzahl Schlafzimmer
7
Grundstücksgröße
ca. 1.055 m²
Wohnfläche
ca. 285 m²
Kaufpreis
1.375.000,00 €

Winkelbungalow par excellence. Mit traumhafter Kulisse in bester Lage von Kassel-Harleshausen!

ImmoNr
VK.2025.KAR.40
Objektart
Haus
Objekttyp
Bungalow
Vermarktungsart
Kauf
Ort
Kassel / Harleshausen
Anzahl Zimmer
6
Anzahl Schlafzimmer
5
Grundstücksgröße
ca. 1.224 m²
Wohnfläche
ca. 249 m²
Kaufpreis
1.390.000,00 €

Sie wollten schon immer ein eigenes Anwesen? In unverbaubarer Panoramalage am Naturschutzgebiet.

ImmoNr
VK.2026.WILH.HIRZ
Objektart
Haus
Objekttyp
Einfamilienhaus
Vermarktungsart
Kauf
Ort
Schauenburg / Elgershausen
Anzahl Zimmer
8
Anzahl Schlafzimmer
4
Grundstücksgröße
ca. 4.952 m²
Wohnfläche
ca. 389 m²
Kaufpreis
785.000,00 €

Sie suchen eine Halle & legen Wert auf gute Mieter? Dann haben wir hier die ideale Kombination!

ImmoNr
VK.2026.HA.Zieren.
Objektart
Haus
Objekttyp
Mehrfamilienhaus
Vermarktungsart
Kauf
Ort
Kassel / Rothenditmold
Wohnfläche
ca. 400 m²
Kaufpreis
799.000,00 €